Making sense of multiple additions
Mound, MN
With Bluestem Remodeling
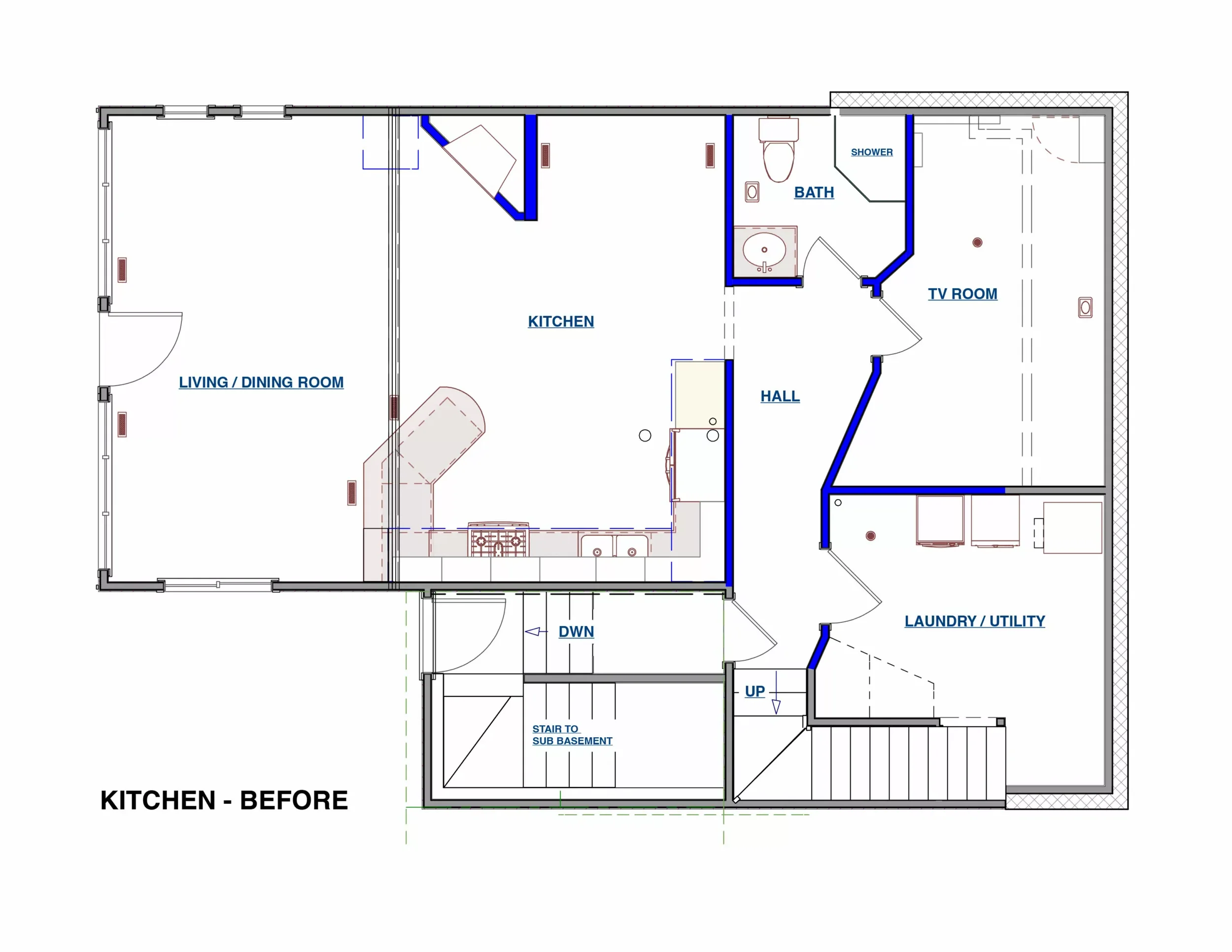
Originally a weekend fishing retreat when begun in the 1950’s, this structure was an assembly of [not-less-than] five previous additions stepping down the hillside toward the lake; and then on top of those.
This renovation reconciled issues from at least four previous efforts, solidifying the structure, improving M/E/P infrastructure, and reconfiguring the kitchen-level entirely. Nearly wall-to-wall lakefront glazing and ‘infinity-effect’ deck makes you feel on top of the water.
Efficient powder room & pantries support the chef’s kitchen, while ceiling beams reinforce purpose planned dining & media areas, without compromising the lakefront views.

